Magnifico monolocale ristrutturato ad uso misto - Le Montaigne

Magnifico monolocale ristrutturato ad uso misto - Le Montaigne

1 790 000 €
1 bagno 25 

Scoprite questo eccezionale monolocale al 5° piano della prestigiosa residenza “Le Montaigne”, a due passi dalla famosa Place du Casino. Completamente ristrutturato, questo spazio luminoso e raffinato è ideale sia per la casa che per l'ufficio.

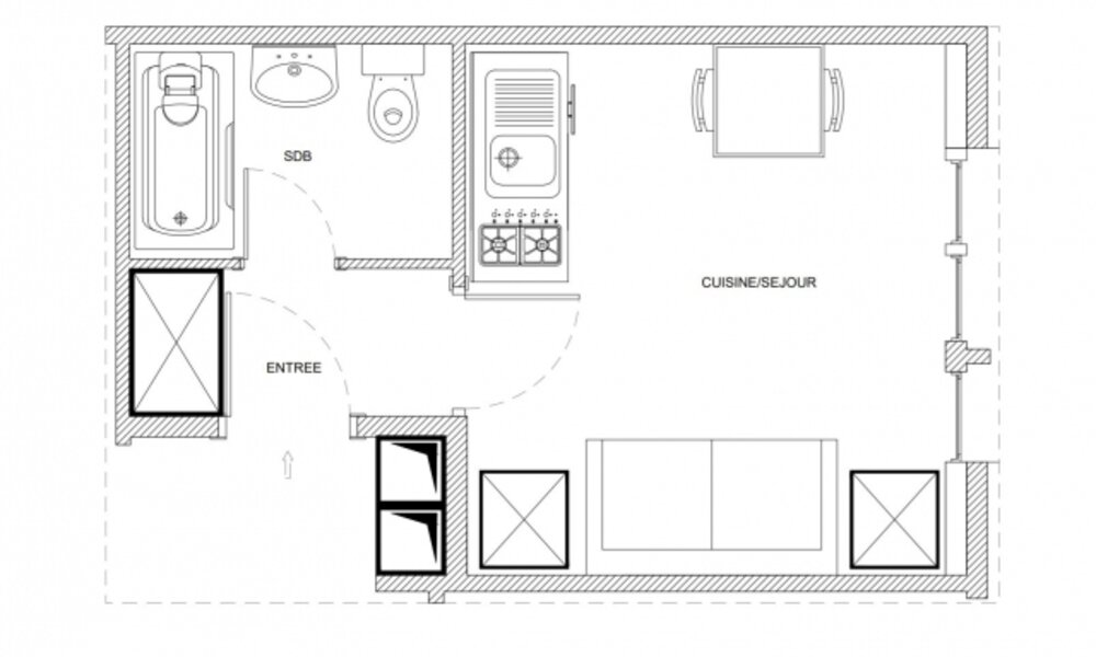
Questo accogliente monolocale è composto da un ingresso, una spaziosa stanza principale e un bagno elegantemente attrezzato, il tutto con una vista rilassante sul cortile e sul giardino.

Una cantina è disponibile per la vendita a 100.000 euro.

Rif.
V-150
Num stanze
1
Prezzo
1 790 000 €
Tipo di transazione
Vendita
Tipo di proprietà
Appartamento
Residenza
Le Montaigne B/C
Quartiere
Carré d'Or
Città
Monaco
Livello
5
Condizione
Ristrutturato
Superf. totale
25 m²
Superf. abit.
25 m²
Uso misto
Si
Bagni
1
Vista
Cortili e giardini

Contattare l'agenzia

Localizzazione

Planifier une visite

Rimanere in contatto

Telefono
What's App
E-Mail
Adresse
4, boulevard des Moulins
98000 Monaco

Contatto